Berufung - Was hat Maria Zeit Ihres Arbeitslebens getan
Maria war eine Kreative, jemand der aus dem Wunsch der anderen eine Gestalt geformt hat. Für mich war Sie immer ein Künstler, ich mochte Ihre Ideen und die Art wie Sie Ihre Werke bis in das kleinste Detail durchdacht hat. Aber Sie war auch ein "Techniker", beherrschte Ihre Werkzeuge und konnte die kompliziertesten Aufgabenstellungen perfekt umsetzen.
Der Architekt
Planung Dipl.-Ing. Arch. Maria de Sousa -
Wohnhaus in Hamburg Altona, Virchow-
strasse
Maria Emilia Gomes de Sousa machte 1998 Ihr Architekturdiplom und arbeitete danach noch einige Jahre als Architektin. Sie betreute Wohnungsbauprojekte in Schwerin und Rostock, nahm an Architekturwettbewerben teil und arbeitete auch sehr viel an städtebaulichen Projekten in und in der Umgebung von Hamburg. Ich selber habe ca. 3 Jahre in dem Architekturbüro
Planungsgruppe Professor Laage 
mit Ihr zusammen gearbeitet. Es war einfach ein Traum mit Ihr an Projekten zu arbeiten, Sie war mir immer der liebste Kollege und Sie war der einzige mit dem ich überhaupt streßfrei zusammen arbeiten konnte.
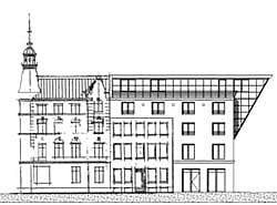
Planung Dipl.-Ing. Arch. Maria de Sousa -
Wohnungsbau Hamburg St.Georg
1996/97 haben Maria und ich für eine ganze
Siedlung in Diedrichshagen 
, mit fast 160 Wohneinheiten, die Genehmigungsplanung erarbeitet (Gebäude zwischen Streuwiesen- und Sonnenblumenweg ).
Architektur war sicher Ihr Traumberuf, die angespannte Lage für Architekten auf dem Arbeitsmarkt ab dem Jahre 2000 ließ Sie nach anderen Möglichkeiten suchen Ihren Lebensunterhalt zu verdienen.
Der Designer
Ich wechselte ca. 2000 die Branche, es ergab sich eine Möglichkeit für mich bei einem großem >
IT Beratungsunternehmen
im Geschäftsbereich für neue Medien.
Maria de Sousa - Graphical User Interface
für eine Anwendung der Lufthansa
Da dieses Unternehmen noch mehr Leute suchte konnte auch Maria dort einsteigen. Sie arbeitete dort als Designer und war verantwortlich für die Entwicklung von
Graphical User Interfaces 
für Intra- und Extranetanwendungen. Es war erstaunlich wie Sie diese für Sie völlig neue Materie beherrschte. Sie hatte einfach ein "Händchen" dafür, die komplexesten Aufgabenstellungen perfekt zu visualisieren und für den Endanwender damit nutzbar und erlebbar zu machen.
Im Anschluß an diese Tätigkeit machten wir beide uns selbstständig als Agentur für elektronische Medien unter dem Label sdsmedia
. sds steht für Stolze de Sousa. Maria erweiterte unser Leistungsspektrum um klassisches Grafikdesign
. Sie entwickelte komplette
Corporate Designs für Unternehmen, gestaltete und setzte Geschäftsausstattungen, Flyer, Broschüren und auch ganze Messeauftritte um.
Der Künstler
Sie hat Ihren Arbeitsbereich in der Mediengestaltung nie studiert oder eine Ausbildung absolviert und trotzdem wurde Sie 2002 von der KSV
als Künstler anerkannt.
Künstler ist, wer Musik, darstellende oder bildende Kunst schafft oder lehrt. Ich war sehr stolz auf Sie, den Ihre Arbeit wurde als darstellende Kunst anerkannt.
Planung Dipl.-Ing. Arch. Maria de Sousa -
Kirchenneubau in Berlin Teltow
Maria war in unserer Firma der kreative Kopf, Sie hatte die Ideen und stand für die Qualität, ich führte in der Regel nur aus. Wir waren ein perfektes Team, ich hatte meine Stärken im Kundenkontakt und in der Grobkonzeption und konnte Sie damit immer sehr gut entlasten. Ich arbeitete bis 2006 aktiv in unserer Firma mit, ab 2006 nur noch als stiller Teilhaber. An dem einen oder anderem Projekt habe ich auch danach noch mitgearbeitet, immer wenn Maria zuviel Arbeit hatte und alles nicht alleine bewältigen konnte. Mit Ihrem Tod ist auch sdsmedia gestorben, Maria war das Rückrat dieser Firma und ohne Sie hätte es diese Unternehmung nie gegeben.
<< zurück weiter >>